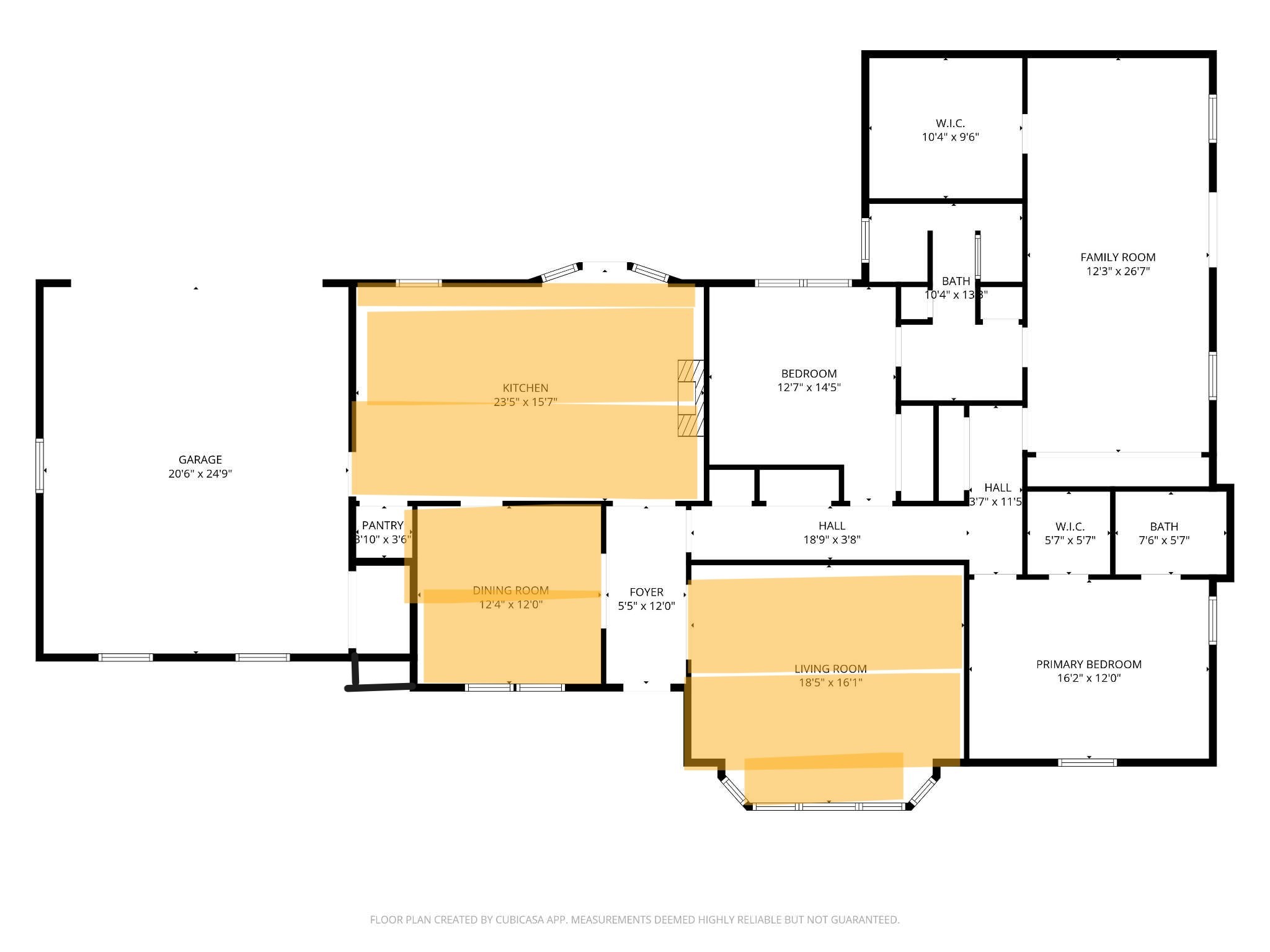
Common area rooms

The common areas of the house include kitchen, living room, and dining room, as highlighted on the floorplan on the left.

From the front-door-entry foye you can enter each of those as well as the walkway to the bedrooms.








Kitchen

The kitchen opens to the patio.

Living room

















Dining room

A separate dining room provides a space for more formal sit-down meals, socialization, or games. It can be decorated in a different theme from kitchen and living room for a different experience when socializing or entertaining.

Designer Varaluz (Flow collection) 5-light pendant included in sale. Hammered ore and silk shade, list price over $1k. Shown on the photo on the left.












The majority of the items in the house would be offered for sale before closing, and the new perspective owner(s) will be given a chance to negotiate the inclusion of any of the furniture or other items in the sale.


Bedrooms

The main layout (above, and also in the Layout and Construction section) shows the location of the bedrooms and their dimensions, along with the position of windows. It is worth noting that the new, remodelled, primary bedroom has the ceiling that slopes up towards the center of the room and increases the hight at the center (along the full length of the room) reaching nearly 11ft as shown on the photos. That bedroom is large and spacious, giving enough space for a large bed along with the sitting/lounge or/and study/office area. The ceilings in the rest of the house are slightly higher than 8ft.







Bathrooms

The jack-and-jill (JJ) bathroom between new primary bedroom and a smaller bedroom has two sinks (shown on the photo on the left), walk-in shower, and a toilet that is secluded for privacy. That section of the bathroom has a long translucent (but not see-through) window giving relaxing soft natural light (as shown on the photo on the right).
The bathroom off the orginal primary bedroom has one sink, toilet, and a tub. The original cast-iron tub (resurfaced) is a little deeper than standard modern tubs and has a convenient horizontal space at the end for placing toiletries or for sitting.






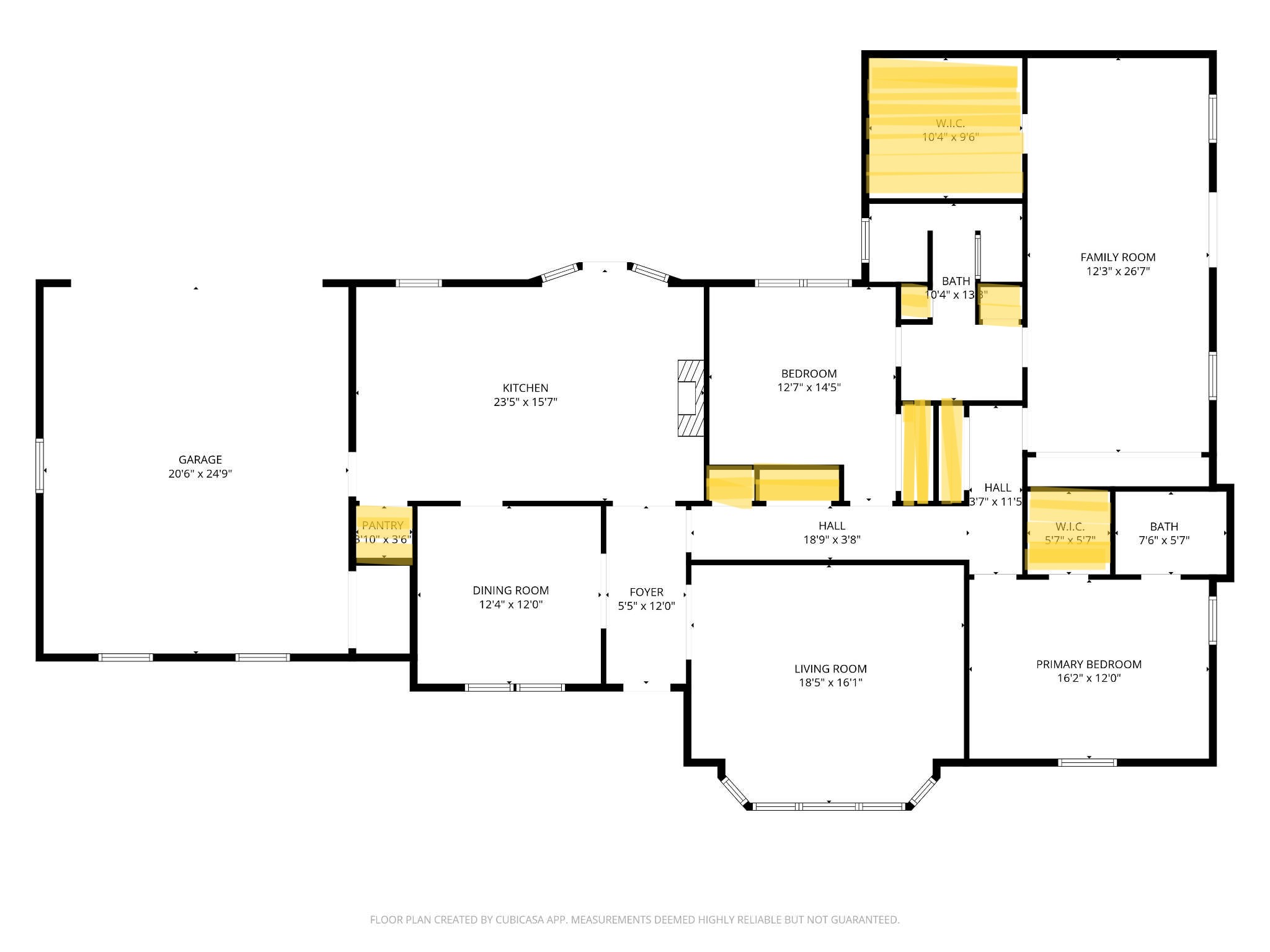
Closets

It is worth noting that the house has plenty of closet space. The scheme on the right highlights them, ranging from pantry, to bath and linen closets, to WICs. The large WIC off the new primary bedroom has a slylight (tube/tunnel) providing nice natural lighting throughout the day for closing selection and dressing or laundry. A section of that closet is shown on the left with only natural light from the skytube and no electric light at all.














Main page


All information on this site represents the opinion of the seller and is to be verified by the buyer.
Copyright 2025-2026 Svetlana A. Pevnitskaya. All rights reserved.