Additional information

Adding half bath

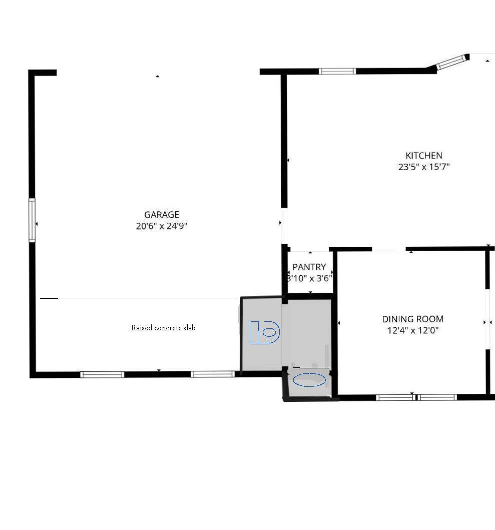
Had the current owner not have to move away from Florida (and realize it already several years ago), the plan was to install half bath using the now-empty old laundry room and part of the raised-concrete back section of the garage. Note that right now both full baths can be accessed via one of the bedrooms. The current pantry at the kitchen/garage entrance can be turned into a walkway to the half bath. (The seller thanks Jeff Drake for the idea to use pantry as a walkway). The seller's vision for the half-bath is illustrated on the plan section on the left. There might still be room to have a narrow closet from part of the pantry. There is already plumbing there and although it would be readjusted, it should be a fairly straightforward remodel/addition. Similarly to the kitchen, a small water heater can be placed under the sink counter, eliminating the need to construct hot water plumbing. The old launrdy room is part of the insulated main house structure. Just a thought to entertain along with your own vision of how this house can be a perfect home for you.









Testing

The current owner tested the house for radon and its by-product radiation levels, which were not only below recommended levels, but essentially non-existent, unlike some other houses the seller saw/considered before buying this one.



Main page

All information on this site represents the opinion of the seller and is to be verified by the buyer.
Copyright 2025-2026 Svetlana A. Pevnitskaya. All rights reserved.

tumblr visitor