Layout


The layout above is approximate and was done by the seller using Cubicasa App.
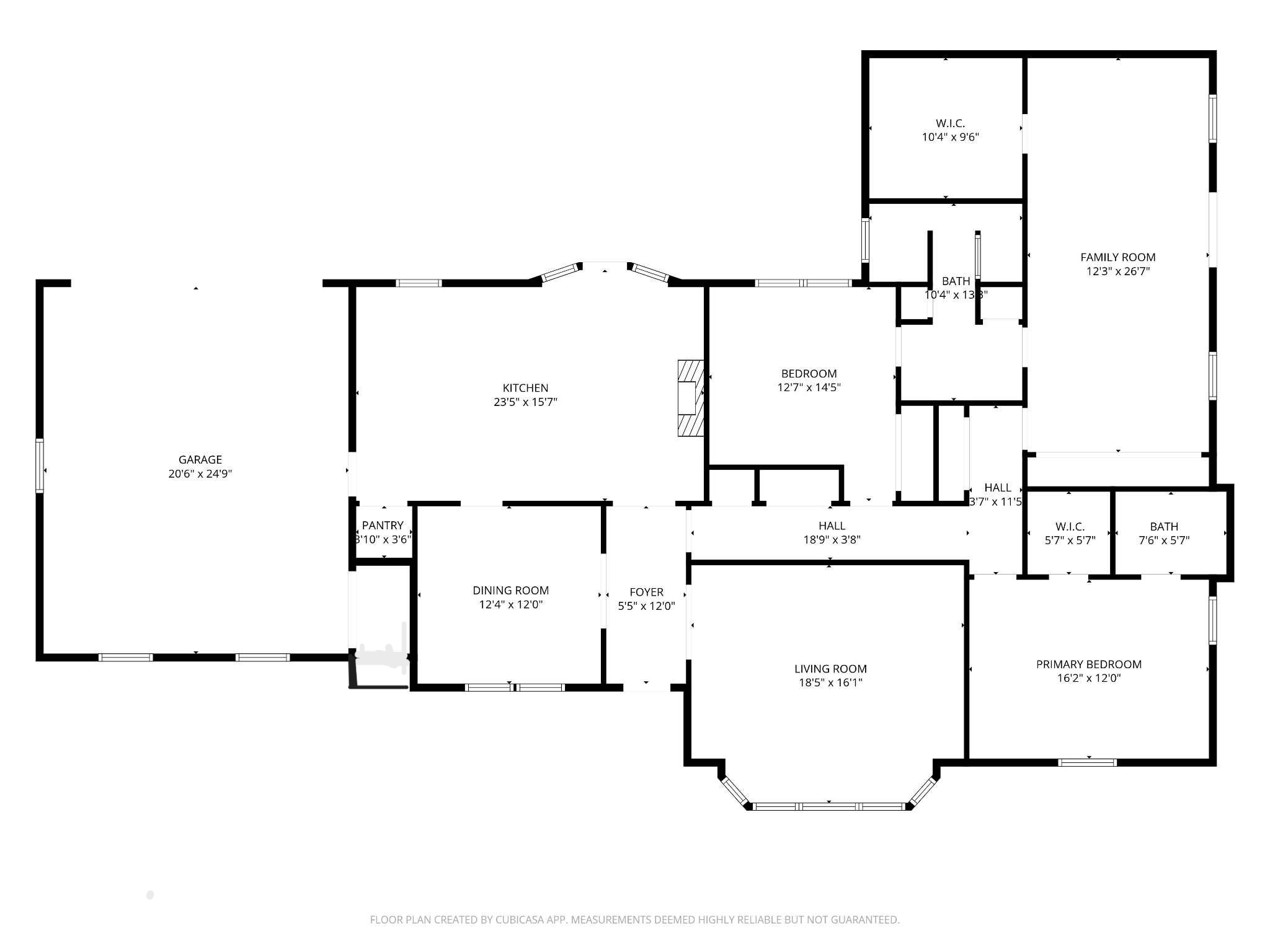
This is a 3 bedroom, 2 bathroom, house. What Cubicasa labeled as "family room" (based on current usage) is a primary bedroom with a large walk-in closet and laundry. That section of the house has been remodeled. The remodeled jack-and-jill (J&J) bath is shared with another bedroom. This feature allows, for example, to use the other bedroom as an office while remaining in the privacy of this kind of a suite, or use it as a room for a small child that is connected via this bath to the parents' bedroom. What is labelled as "primary bedroom" was the original primary bedroom with a private bath. J&J updated bath has a walk-in shower, while the orignal "primary bedroom" bath has the original cast iron tub (resurfaced) that is great for either taking a shower or a nice relaxing soak.

The house has a spacious garage, unusual for this historic neighborhood and very useful. The driveway is off Maple Dr., and the garage door is not facing the street, giving you privacy when keeping it open. See photo of the end of the driveway (on the left).

One of the convenient features is that the (updated) electric circut board is right in the garage, providing easy access without having to enter the house. The board is equipped for generator connection. You can see the edge of the circuit board on the photo on the left of the garage entrance, right under the wires entering the house. You can set the generator right outside of the garage.


At the end of the driveway there is a gate to the back wooden patio and pergola (some wood damage can be fixed by new owner if desired). You can also enter that area directly from the kitchen, great place to have a morning coffee or to socialize in the evening (see photo on the right). There is mature jasmine at the back of the pergola that has currently been trimmed away from the front , the picture on the left (view from kitchen's patio entry) shows how pergola looks with jasmine over it.


Current owner particularly appreciates the kitchen, living room and dining room layout. The updated kitchen is large and gives the spacious feel of modern designs that combine it with living room, yet you have the advantage of having a formal dining room and also a separate living room.

The house gets some sunlight during the whole day, starting from the morning sun in the kitchen and smaller bedroom that are facing east, to the new and original primary bedrooms during the day (facing south) and the old primary bedroom, living room, and dining room in late afternoon and early evening. At the same time, due to the presence of trees and shade, the bedrooms remain fairly cool in the summer.


Construction

The house was built in 1966 on a conrete slab, with wooden frame and brick siding. The ceilings hight is sligfhtly higher than 8ft except the new primary bedroom where the ceiling slopes up towards the center of the room to almost 11ft. The picture below is from leonpa.org website and it includes the addition to the house (A3) that expanded one of the original bedrooms into a new primary bedroom, expanded J&J bathroom, added a spacious walk-in closet, and created a screened porch on a concrete foundation (A4). The scheme also shows the covered front porch (A2). The back screened porch is shown on the photo at the bottom-right of this page.


The house is very well and durably built. During the ownership years, the current owner did not see any changes or settlement in the house's structure. Apparently some of the original trim was made of redwood, the material not readily available for construction these days, and it illustrates the approach to building this house. Original drawings are available. As probably in any period house (before 1978), the paint used at the time contained lead. The additon and remodelled parts would not have it, and the house has been repainted multiple times so it is unclear how much of it is left underneath. The Owens Corning (OC) architectural shingles roof was installed by Tadlock Roofing in 2018 and is currently still under warranty. Current owner booked a roof maintenance inspection and service with Tadlock to take place in the first week of April 2026 to make sure that there are no problems.

Main page


All information on this site represents the opinion of the seller and is to be verified by the buyer.
Copyright 2025-2026 Svetlana A. Pevnitskaya. All rights reserved.